Virginia Court, Caulfield South Kitchen

Virginia Court, Caulfield South

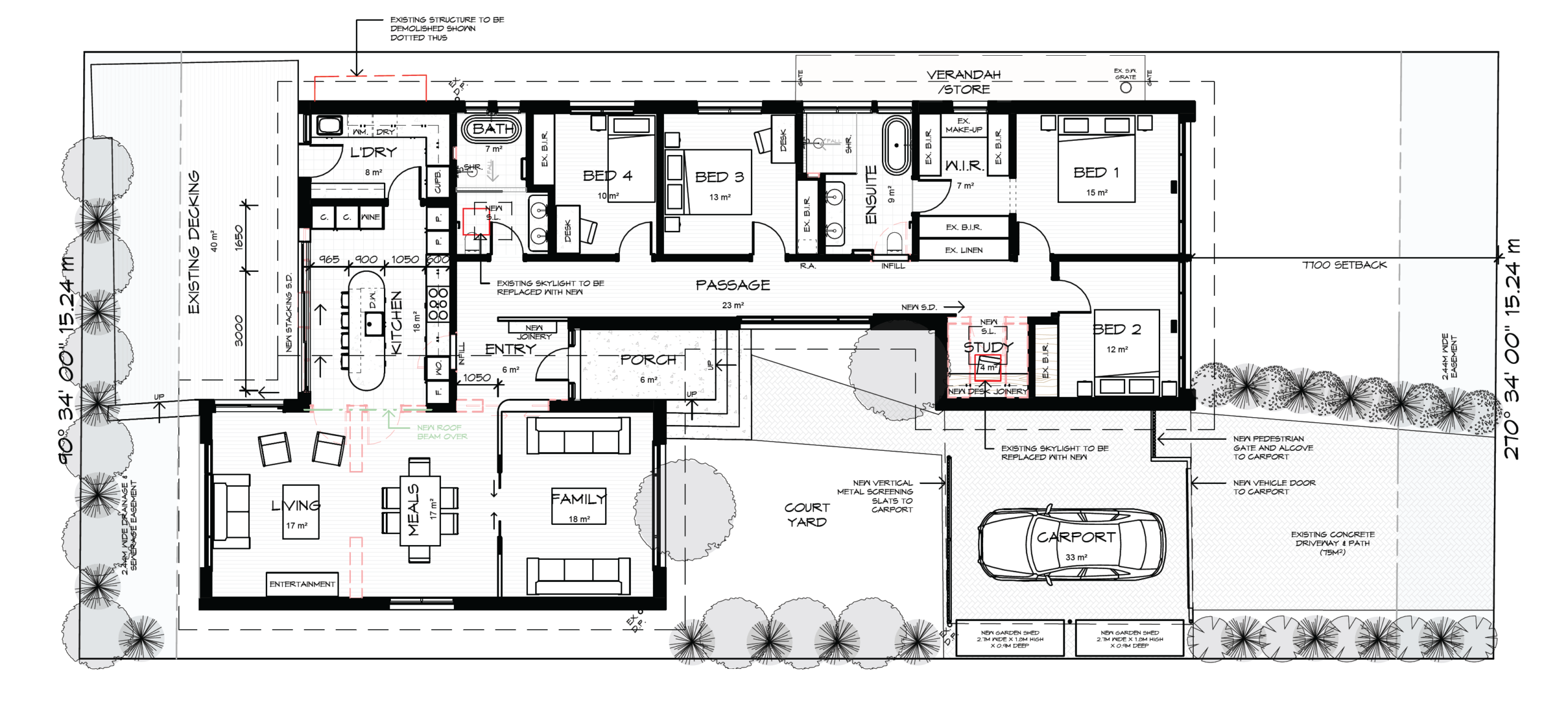
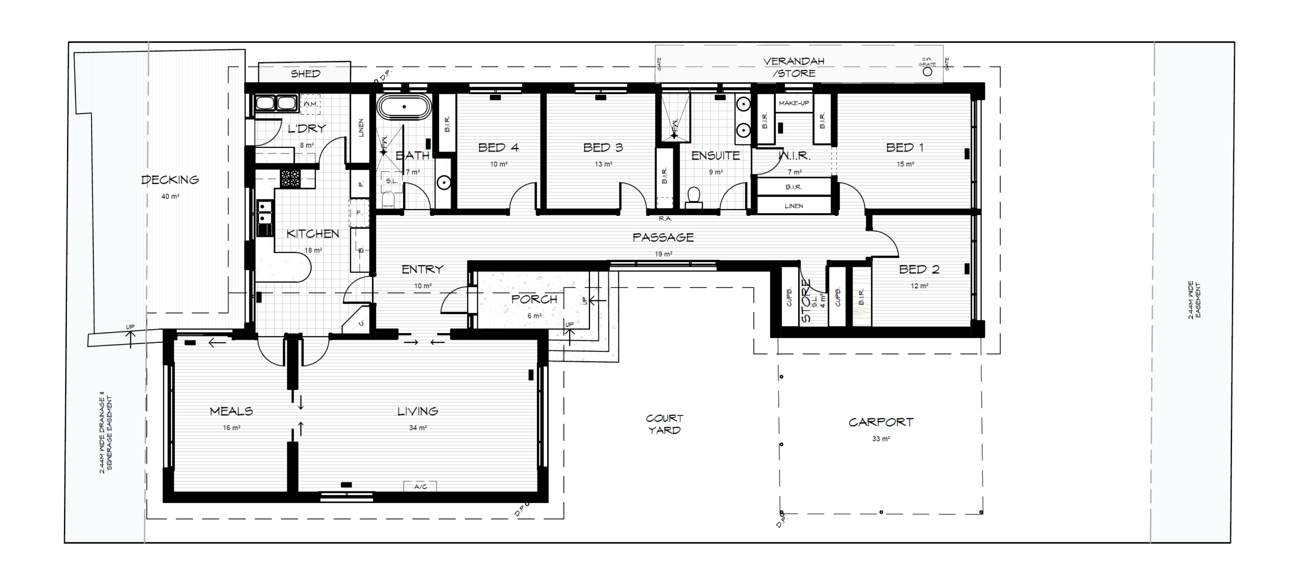
Floor Plans:

BeforeAfter

Conceptual Renderings:

About:

The internal layout of this 70’s era home was carefully re-worked to minimise construction costs while transforming a traditionally segmented plan into a cohesive, modern open-plan environment suited to a growing family. Rather than undertaking a full structural overhaul, the design strategy focused on selective intervention—retaining key loadbearing elements and service zones, while reconfiguring circulation and opening up living spaces where it delivered the greatest impact.

A central move was the rationalisation of the plan, removing unnecessary partitions that once defined small, inward-looking rooms typical of the era. In their place, a more fluid spatial sequence was introduced, allowing the kitchen, dining, and living zones to operate as a single, connected volume. This not only improves usability for family life—enabling supervision, interaction, and flexibility—but also enhances the perception of space without increasing the building footprint.

The new kitchen becomes the anchor of the home, both functionally and visually. Its curved island softens the geometry of the space and improves circulation flow, while the updated material palette—sage green cabinetry, warm timber flooring, and refined stone surfaces—introduces a contemporary yet timeless character. The improved connection to the outdoors, achieved through enlarged openings and clearer glazing, reinforces the sense of openness and brings in natural light, reducing reliance on artificial lighting during the day.

Cost efficiency was maintained through strategic reuse and consolidation. Wet areas were retained in their original locations, avoiding expensive plumbing relocations.  The introduction of a freestanding bath, recessed wall niches, and minimal fixtures elevates the space without requiring significant structural change. The addition of subtle detailing—such as integrated storage, wall recesses, and carefully placed accessories—demonstrates how thoughtful design can achieve a high-end outcome within constrained budgets.

The entry and transitional spaces further reinforce the design intent. The incorporation of built-in joinery, coat hooks, and layered shelving creates functional micro-zones that support everyday family use while maintaining visual clarity.

Lighting plays a key role throughout the rework. The combination of improved natural light penetration and carefully positioned artificial lighting—such as illuminated downlights and brighter, more balanced internal conditions—enhances spatial comfort. Importantly, contrast and material depth have been refined to avoid the flatness often associated with older interiors, giving each space a more tactile and considered quality.

Overall, this project has a disciplined approach: retain where possible, transform where necessary. By working around the constraints of the original 70’s home, the design achieves a contemporary open-plan layout, improved spatial flow, and a cohesive material language—all while keeping construction costs controlled. The result is a home that feels significantly larger, brighter, and more adaptable, without the need for extensive structural rebuilding.

Completion Photos: